Дом по адресу Новосибирск, Новосибирский район, за 5500000 р.

Адрес Новосибирск, Новосибирский район, село Кубовая, Парковая улица
Цена 5 500 000 р.
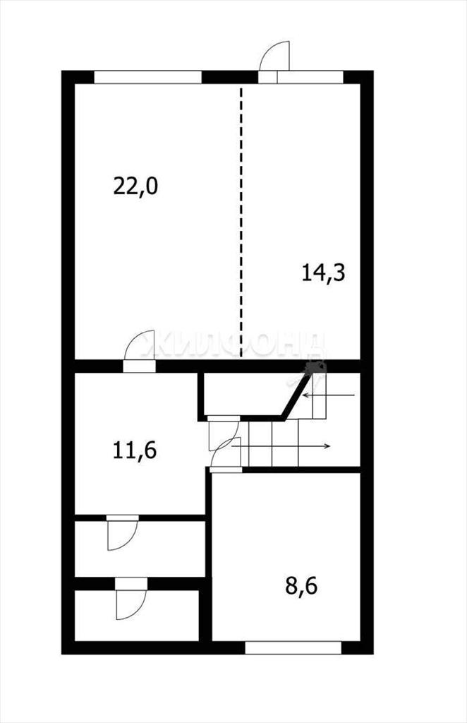
Площадь дома 121,1 м2, участка 2 м2
Кол-во комнат 6
Таунхаус по ул. Парковая. Общей площадью: 121.10 кв.м. В продаже очень уютный Таунхаус в пос. Новая кубовая (Красный Яр) ! Если вам нужна тишина и свежий воздух, то данное предложение для вас! ! Дом построен в 2015 году, облицовочный кирпич, газовое отопление, канализация - септик на 2 квартиры. Общая площадь составляет 120 м кв. Участок угловой, очень уютный и вместительный. До площади Калинина 30 минут на машине! ! На первом этаже теплый пол, просторная кухня гостиная, спальня. Высота потолков 2,7 м. На втором этаже 3 просторных комнаты. Два санузла и душевые на 1 и 2 этажах. Ремонт сдан из качественных материалов, свежий, никто не жил. Дом очень теплый, радиаторы заменены на чугунные. На полу кафель и плитка ПВХ, высококачественные двери Аквадор. Чистая продажа! ! В летний период с апреля по ноябрь ходит автобус от пл. Калинина. Поселок очень уютный и красивый! ! Звоните и записывайтесь на просмотр! Возможен обмен на вашу недвижимость. Возможна продажа в рассрочку. При звонке, пожалуйста, сообщите номер варианта - JV008054140050
Объявление № 22975959
Дата подачи:
21 июля 2025 г. 20:54
Дата обновления:
21 июля 2025 г. 20:54
Просмотров 16 Хотите продать быстрее?

Продавец
Наталья Александровна
Показать номер телефона
Пожаловаться
Комментарии:
Добавить